shared ownership
Plot 13, Brandon
at Pinfold Park II
- 3 bedroom detached home
- Single Detached Garage
- 2 Bathrooms
- 3 Bedrooms
- Leasehold
Available for £70,499
Our sales centre and show homes are open Thursday to Monday 10am to 5pm.
Contact sales team
01262 416 707- Estimated Council Tax Band TBC
- Predicted Energy Rating B
Price shown based on a 30% share of £234,995 (full purchase price). T&Cs apply. Eligibility Criteria applies, speak to our Sales Executive for more information.
The Brandon is a stunning three bedroom home perfectly designed for modern living. Benefitting from a beautiful kitchen-diner with French doors out to your own garden, a separate living room and downstairs WC this home has everything you need and more. Upstairs you'll find three well proportioned bedrooms, with a luxurious en-suite to the master bedroom.
All images, videos, virtual tours, photographs, dimensions, and layouts are for illustrative purposes only and are indicative of the house type. For further information, please refer to the image disclaimer within the footer of the Gleeson Homes website or consult with the development’s Sales Executive.
Key features
- Turfed front and rear garden with full 6ft timber fencing is included in this home as standard
- Detached
- En-suite to master bedroom
- Front and rear gardens
- High-quality specifications included as standard from well-known brands
- Personalise your home with our optional extras (subject to build stage)
- 10-Year Warranty (first 2 years with Gleeson and a further 8 years with NHBC)
Take a look around
Matterport room dimensions are provided as approximate measurements, accurate to ±50mm, and may include fitted wardrobes or similar features. Please refer to the dimensions specified alongside the floor plans below.
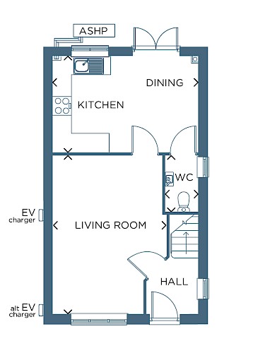
Floor Plans

Ground Floor
| Room | Metres | Feet & Inches |
|---|---|---|
| Kitchen / Dining | 4.57 x 3.00 | 15'0" x 9'10" |
| Living Room | 5.00 x 3.61 | 16'5" x 11'10" |
| WC | 1.40 x 1.00 | 4'7" x 3'3" |

First Floor
| Room | Metres | Feet & Inches |
|---|---|---|
| Bedroom 1 | 4.40 x 2.52 | 14'5" x 8'3" |
| En-suite | 1.96 x 1.53 | 6'5" x 5'0" |
| Bedroom 2 | 3.65 x 2.52 | 12'0" x 8'3" |
| Bedroom 3 | 2.64 x 1.96 | 8'8" x 6'5" |
| Bathroom | 1.96 x 1.77 | 6'5" x 5'10" |
Gross internal area: 75.85m² / 816ft²
Standard specification
Kitchens
With 100’s of Symphony kitchen combinations to choose from you can create a space completely tailored to you. Your kitchen will include a stainless steel single oven and sink, with drainer board and a mixer tap. There will be space provided for a standard size washing machine with cold feed plumbing and a single power point.
Bathrooms
Your bathroom will come complete with a white Ideal Standard bathroom suite, with pillar taps to the bath and washbasin. Choose between a range of Porcelanosa tiles to finish your bathroom perfectly.
Fixtures & fittings
Your home will come finished with a consumer unit, sockets and switches all included and fit to NHBC standards. Energy saving lightbulbs will be provided where required.
Heating
Subject to plot and development, your home will come complete with either a brand new, high efficiency combination boiler and central heating system, or air source heat pump technology installed. Please speak to your Sales Executive for more information.
Exterior
All our homes feature a turfed front garden and a private garden to the rear. Some of our homes come with fencing and turfing in the rear garden as standard subject to plot and development. Where this is not included as standard, both are available as optional extras. Speak to your Sales Executive for more information on development specific specification.
Community
Transport
The bus stop on Marton Road is a 20 minute walk away with a regular service linking the development to Bridlington town centre, Filey and Scarborough. Bridlington bus station is just under three miles away with additional services running to Beverley, Hull, York and Leeds. Bridlington train station is a seven minute drive away with direct services to Beverley, Hull, York, Sheffield and beyond.
Schools
Local childcare is provided by Cliffe House Nursery School and Bridlington Nursery School, both located within a five minute drive of Pinfold Park. Burlington Infants and Junior School is just a five minute walk from the entrance of the development. Martongate Primary School is less than a mile away. Secondary education is provided by Headlands School, which is 1.4 miles from the development.
Amenities
There is a selection of local convenience stores within a short distance of the development, including a SPAR, Londis, One Stop, and a post office. There is also a pharmacy nearby. Larger supermarkets, including Aldi, Morrisons, Iceland and a large Tesco superstore, are just a short drive from Pinfold Park. Bridlington's town centre and the Promenades Shopping Centre are a ten minute drive away.
Leisure
Bridlington's popular sea front and award-winning beaches are just a five minute drive from the development. The town has its own leisure centre and is just a short drive from Pinfold Park, boasting a variety of amenities including a swimming pool, health suite, gym, classes, climbing wall, children’s activities, training courses and a café.
The Forum Cinema at The Esplanade is just under two miles from the development. Bridlington Spa and the Spotlight Theatre are both within a ten minute drive.
You will also find a selection of pubs, clubs and restaurants in the bustling town centre, located just over two miles from Pinfold Park. Popular attractions, such as Sewerby Hall and Gardens, Burton Agnes Hall, Bayle Museum, Bridlington Birds of Prey and Animal Park and Flamborough Lighthouse, are all within ten miles of Bridlington.
How much could you spend on a new home?
Let us know what you are interested in so that we can keep in touch.
Please be as specific as possible to ensure your enquiry can be answered accurately.
* Fields are mandatory
Enquire Now
We look forward to meeting you!
Enter your information below to request an appointment for plot 13 at Pinfold Park II and we will get back to you as soon as possible to confirm.
* Fields are mandatory
Request an Appointment
Plot 13 at Pinfold Park II